Inspired by Cliff May’s iconic and historic California Ranch Homes, a Homestead is everything a California house should be open, breezy, and full of natural light and energy.
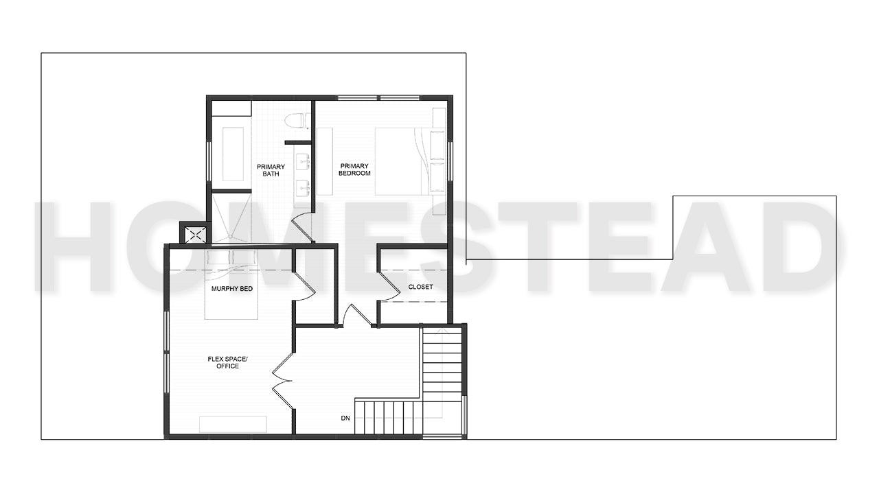
We’ve taken our picturesque Homestead 01 modern ranch home and elevated it (literally) with a second floor to provide extra space, plus an additional bedroom and bathroom. This inspired two-story home maintains all of the charm and characteristics of our signature model with the perfect vistas and just the right amount of steps to reach higher ground.
HOMESTEAD 02 DETAILS:
Type
Two-Story Residence
Total Interior Space
2250 sq ft
Bedrooms
4
Bathrooms
3
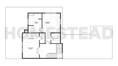
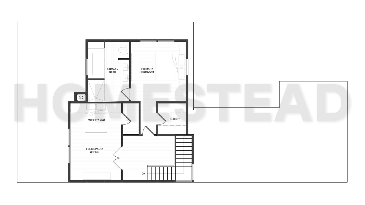
Primary Suite (Second Story)
Walk-In Closet, and Luxuriously Scaled Bathroom
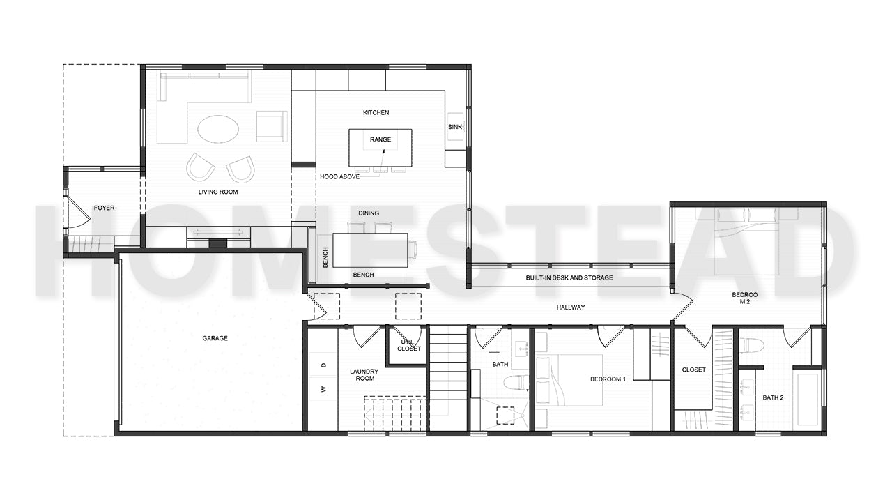
Kitchen
Open Concept Floor Plan
Designer Approved Appliance package Kohler and Emtek Hardware, 36" gas/ induction range and Taj Mahal countertops
Designer Approved Appliance package Kohler and Emtek Hardware, 36" gas/ induction range and Taj Mahal countertops
Living Room
Open Concept Plan with fireplace and media center
Entry Foyer
Welcoming Transition Space
Laundry
Samsung side-by-side washer dryer
Storage
Custom Built-ins (Designed to Interchange with Prefab IKEA Cabinetry)
Garage
Garage Attached, Side-by-Side 2-Car
Limited Availability
1/50
Materials & Build Quality
Homestead 02 Plan
Features Include
Exterior Finish
Board and Batten
Fire Brick
Engineered Oak Garage Door
Fire Brick
Engineered Oak Garage Door
Roofing
IBHS Cool Roof Shingles
Windows & Glazing
Low-E glass
Title 24 Compliant
Marvin 'Elevate' Series recommended (interchangeable with other brands)
Title 24 Compliant
Marvin 'Elevate' Series recommended (interchangeable with other brands)
Flooring
Stuga Engineered oak flooring
Cle Tile in Bathrooms
ORCA Exterior Natural Stone Pavers (permeable and sustainable)
Cle Tile in Bathrooms
ORCA Exterior Natural Stone Pavers (permeable and sustainable)
