Inspired by Cliff May’s iconic and historic California Ranch Homes, a Homestead is everything a California house should be open, breezy, and full of natural light and energy.
Homestead 01 is a thoughtfully designed rebuild for Altadena fire survivors who want character and history — not a cookie-cutter developer home.
Every detail balances style and value, from Ikea cabinetry with custom fronts to Cle tile, Kohler and Emtek hardware, and a modern farmhouse kitchen with a 36” gas range and Taj Mahal quartzite countertops. The result is a warm, livable home that honors Altadena’s heritage while embracing modern comfort.
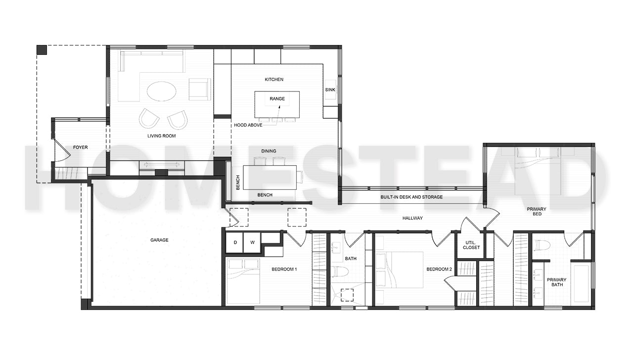
Homestead 01 Details
Type
Single-Story Residence
Total Interior Space
1500 sq ft
Bedrooms
3
Bathrooms
2
Kitchen
Open Concept Floor Plan
Designer Approved Appliance package Kohler and Emtek Hardware, 36" gas/ induction range and Taj Mahal countertops
Designer Approved Appliance package Kohler and Emtek Hardware, 36" gas/ induction range and Taj Mahal countertops
Living Room
Open Concept Plan with fireplace and media center
Entry Foyer
Welcoming Transition Space
Laundry
Samsung side-by-side washer dryer
Storage
Custom Built-ins (Designed to Interchange with Prefab IKEA Cabinetry)
Garage
Garage Attached, Side-by-Side 2-Car
Limited Availability
1/50
Materials & Build Quality
Homestead 01 Plan
Features Include
Exterior Finish
Board and Batten
Fire Brick
Engineered Oak Garage Door
Fire Brick
Engineered Oak Garage Door
Roofing
IBHS Cool Roof Shingles
Windows & Glazing
Low-E glass
Title 24 Compliant
Marvin 'Elevate' Series recommended (interchangeable with other brands)
Title 24 Compliant
Marvin 'Elevate' Series recommended (interchangeable with other brands)
Flooring
Stuga Engineered oak flooring
Cle Tile in Bathrooms
ORCA Exterior Natural Stone Pavers (permeable and sustainable)
Cle Tile in Bathrooms
ORCA Exterior Natural Stone Pavers (permeable and sustainable)
